Thiết Kế Thi Công Nội Thất Trọn Gói Nhà Phố
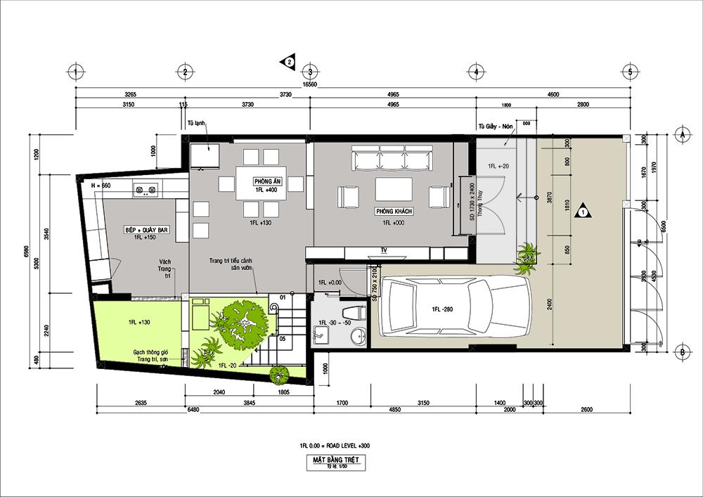
Đặc Điểm Thiết Kế Thi Công Nội Thất Trọn Gói của căn nhà phố: có một mặt tiền phía trước, 3 mặt còn lại không được trổ cửa, mặt bằng không vuông vức, có nhiều đường đứt gãy. Dựa vào đặc điểm này, Thiết Kế Nội Thất IP tính toán và nương theo từng đường gấp khúc của mặt bừng để tạo ra một không gian nội thất đẹp và tiện dụng, phù hợp cho từng khu vực, giải quyết triệt để những khiếm khuyết của mật bằng.

Thiết Kế Thi Công Nội Thất Trọn Gói

Không gian phòng khách, phòng ăn và bếp được Thiết Kế Nội Thất mở để ánh sáng đi xuyên suốt qua toàn bộ không gian. Kệ tivi kéo dài hết căn phòng ngăn cách với gara ô tô, đem lại một sảm giác sang trọng về thẩm mỹ, và tránh đi âm thanh ồn ào mỗi khi xe ra vào.

Thiết Kế Thi Công Nội Thất Nhà Phố
Chủ nhà là một người sành rượu nên kệ ti vi được kết hợp vơi kệ rượu, với đường nét hiện đại và thiết kế ánh sáng hợp lý, giúp chủ nhà thoải mái thể hiện sở thích của mình .
Vị trí bếp và phòng ăn nằm trong một không gian bị đứt gãy, tận dụng mặt bằng này nội thất IP thiết kế một quầy bar để phân khu công năng, và tiếp nối với đường gãy làm biến mất khuyết điểm của mặt bằng, trả lại sự vuông vức cho phòng ăn và bếp.

Thiết Kế Nội Thi Công Nội Thất Phòng Ăn Nhà Phố
Cũng như những căn nhà phố khác chỉ có 1 mặt tiền, không có sự thông thoáng tự nhiên trong căn nhà. Việc bố trí 1 vườn cây dưới chân cầu thang, là một điểm cộng cho căn nhà này. Giúp căn nhà trở nên thông thoáng không bị bí bách như những nhà phố bình thường, và đem lại cảm giác thoải mái khi ở trong căn nhà.

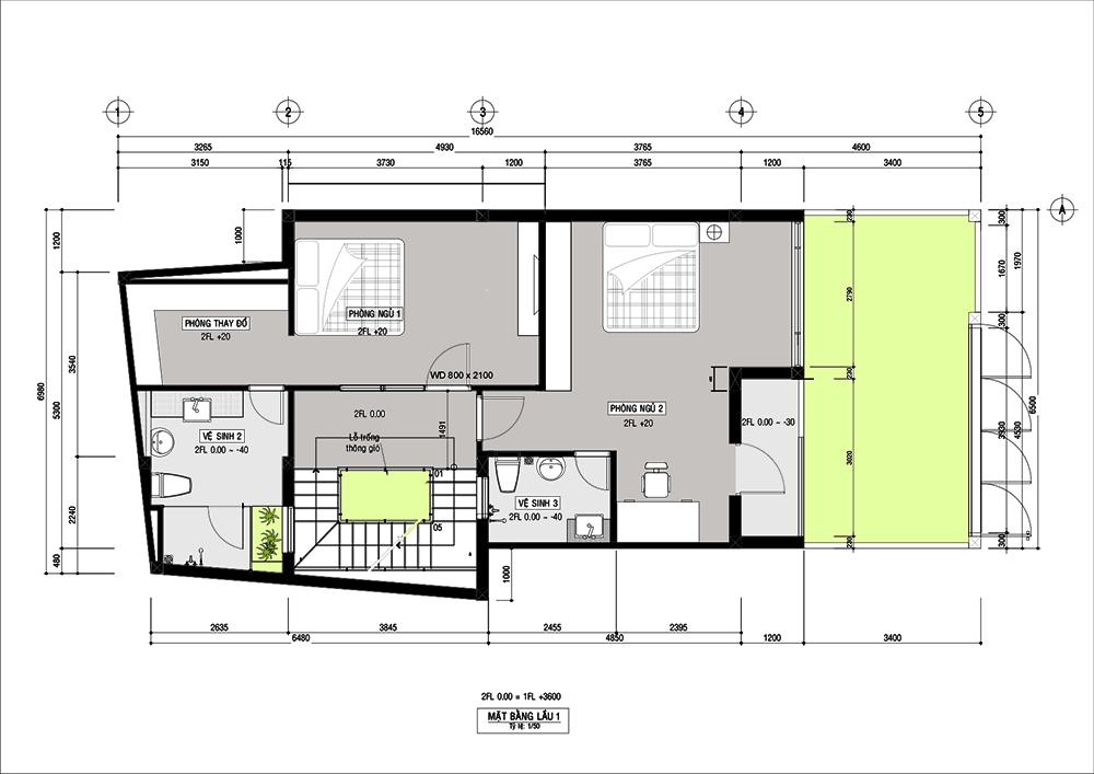
Lầu 1 bố trí 1 phòng ngủ master và 1 phòng ngủ con. Phòng ngủ master được thiết kế rộng rãi, có phòng thay đồ và phòng vệ sinh riêng liên tục với nhau mang lại tiện nghi tối đa cho chủ nhà . Giữa không gian ngủ và phòng thay đồ có một vách ngăn được thiết kế thành kệ tivi và bàn trang điểm với đường nét hiện đại

Phòng ngủ 2 con được Thiết Kế Nội Thất Đẹp màu sắc phong phú, đem đến sự vui nhộn cho không gian của bé . Tủ đồ lớn, sử dụng tay nắm âm tạo nên đường nét hiện đại trong tổng thể không gian.

Thiết Kế Nội Thất Phòng Ngủ Nhà Phố
Bàn học của 2 bé được bố trí ở một ngăn nhỏ của căn phòng , bàn được thiết kế treo kết hợp kệ sách hở đường nét gọn gàng , sử dụng hai mảng màu xanh và đỏ làm điểm nhấn mang đến sự vui nhộn, năng động, kích thích sự sáng tạo của bé.

Thiết kế Nội Thất Phòng Học Nhà Phố
Hãy liên hệ với chúng tôi Interior Passion với nhiều năm hoạt động và triển khai dự án thiết kế và thi công nội thất căn hộ tại khu vực Thành Phố Hồ Chí Minh chúng tôi sẽ mang đến quí khách hàng những sản phẩm đẳng cấp, tiện nghi trong từng phong cách sống.
Địa chỉ: 281 Lê Văn Lương, P.Tân Quy Quận 7 Tp.HCM
Điện thoại: (08) 37752609 - (08) 37752610
Hotline: 0917 977 299- 0903176676
Email: interiorpassion.co@gmail.com



